Architecte : Des Clics et des Calques Architectes
Client : AEFE (Agence pour l’Enseignement Français à l’Etranger)
Ville : Madrid (Es)
Surface & Montant : 4300 m² / 5,5 M€
Phase : Livré en 2019
Mission : Maîtrise d’œuvre environnementale
Label/Certification : Certification internationale delivrée par CERWAY, niveau excellent
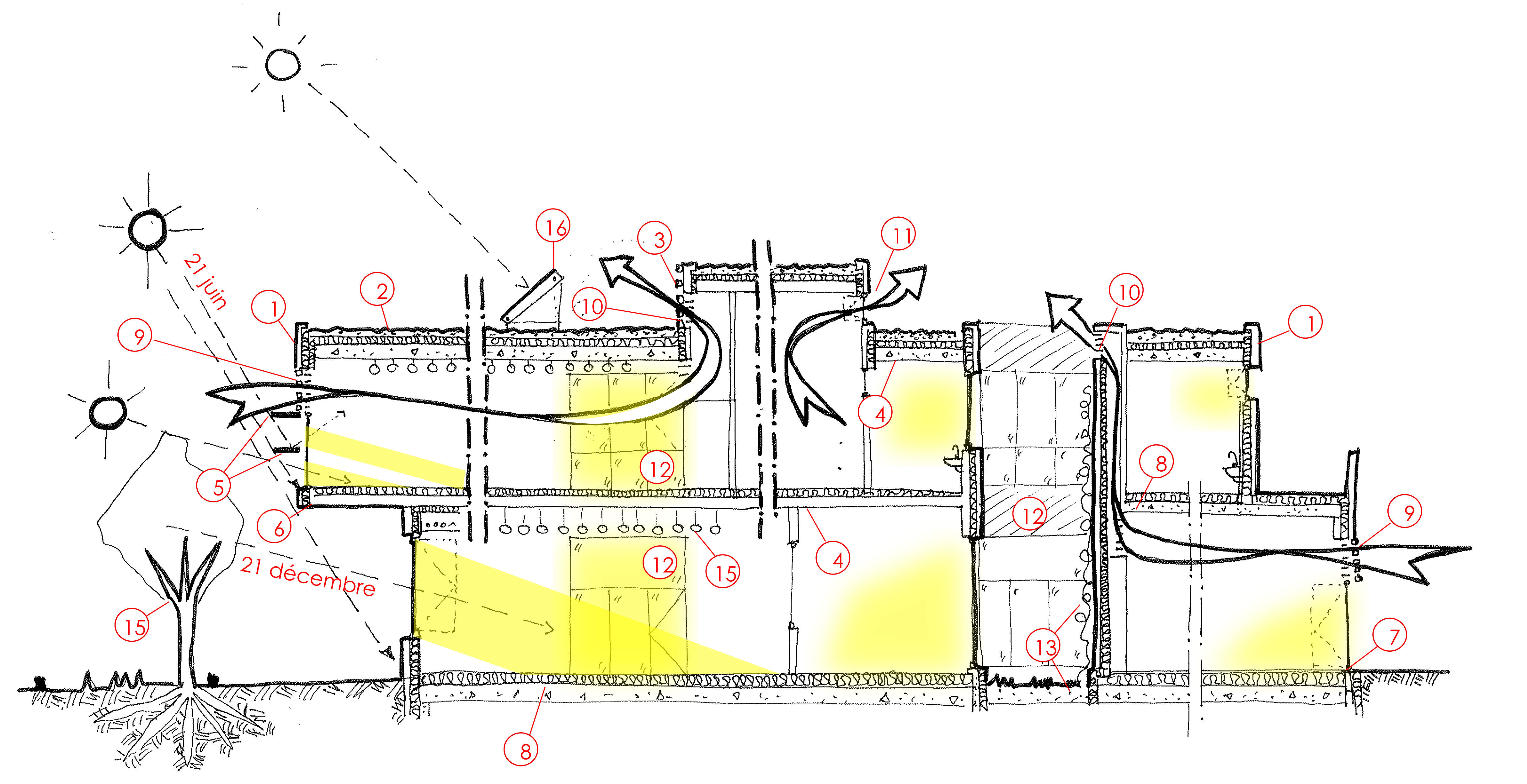
Switch a participé à la conception d’une école maternelle sur le site du Lycée Français de Madrid, faisant partie de la maîtrise d’œuvre, mi- française mi- espagnole. La collaboration avec les architectes dès l’esquisse a permis de faire émerger une configuration de bâtiment respectant des pratiques bioclimatiques, aménageant à la fois des protections solaires et des patios permettant un apport de lumière naturelle en fond de classe. Par ailleurs, un travail important a été réalisé tout au long des études pour concevoir et défendre une stratégie de ventilation naturelle, qui pourrait se substituer, été comme hiver, à l’installation double flux imposée par la réglementation espagnole.



























